О нас
Наши проекты
Калькулятор кредита
Контакты
ARM
RUS
ENG
Рус
ARM
ENG
ЗАБРОНИРОВАТЬ СЕЙЧАС
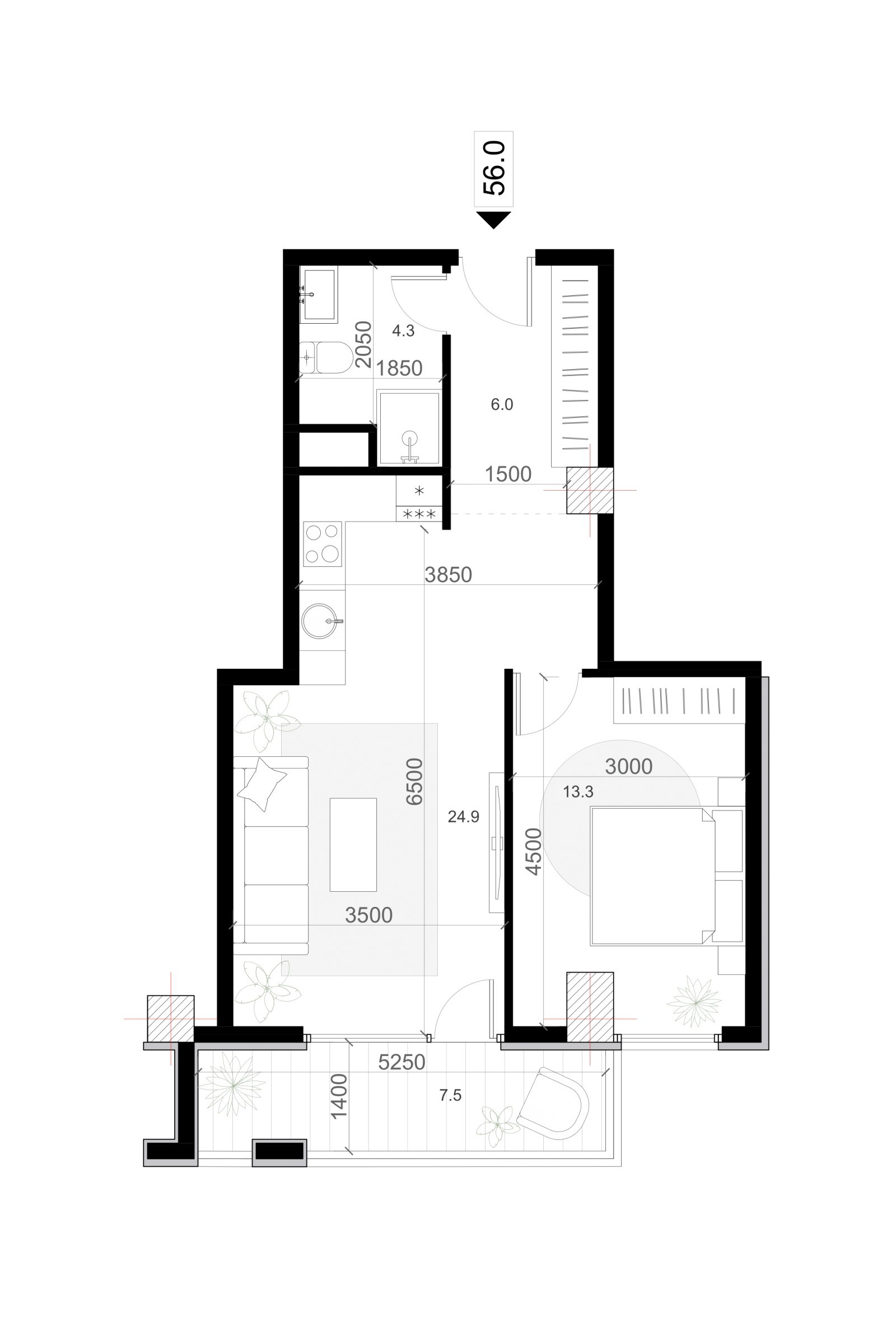
Апартамент A38
Площадь
56 м²
Сейсмостойкость
от 9 до 10 баллов
Цена: от 400,000 драмов
Whatsapp
Отправить Запрос
Modal title
Имя*
Электронная почта:*
Телефон*
Сообщение
Отправить Запрос