Մեր մասին
Մեր նախագծերը
Վարկի հաշվիչ
Կապ
ARM
RUS
ENG
Հայ
RUS
ENG
ԱՄՐԱԳՐԵԼ ՀԻՄԱ
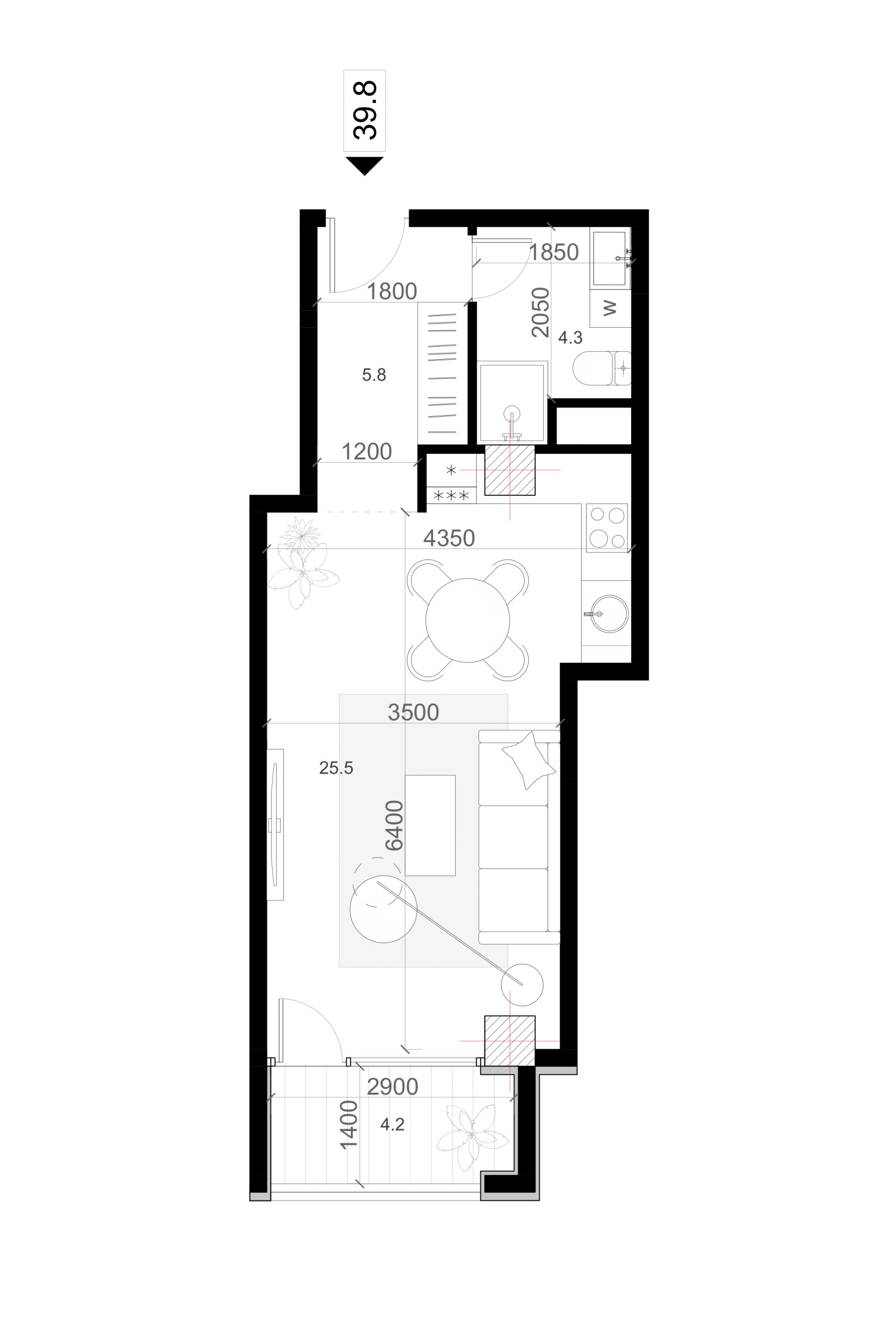
Բնակարան B39
Մակերես
39.8 մ²
Սեյսմակայունություն
9-ից 10 բալ
Գինը՝ սկսած 400․000 դրամից
Whatsapp
Ուղարկել հարցում
Modal title
Անուն*
Էլեկտրոնային հասցե*
Հեռախոս*
Հաղորդագրություն
Ուղարկել հարցում